Free cookie consent management tool by TermsFeed

INFORMATIONS-TAG & GRUNDSTÜCKSBESICHTIGUNG für Neubau-Eigentumswohnungen | WF-Sickte "Kaiserkamp 19" | Sonntag, 22.03.2026 von 14-16.00 Uhr | Mit Balkon - moderne Obergeschosswohnung "Kaiserkamp" in Sickte | Willkommen zu Hause!

Impressionen

Ansicht Nord-West | Sonnenuntergang

Objektdaten

Kennung:
Grundstücksfläche:
Wohnfläche:
Gesamtnutzfläche:
Vermarktungsart:
Ø Preis Nutzfläche:
Kaufpreis:
Provision für Käufer:
Baujahr:
Heizungsart:
Energieausweistyp:
Energieverbrauchskennwert:
Energieeffizienzklasse:
N-ETW-1.OG.06-GO-520594
keine Angabe
70.29m2
74.29m2
Kauf
3.498,45 EURO/m2
259.900,00 EURO
keine
2026
Wärmepumpe
keine Angabe
keine Angabe

Ausstattung

Zukunftssichere Energie:
Die energieeffiziente Bauweise wird durch eine moderne Zentralheizung mit Wärmepumpe ergänzt. Genießen Sie wohlige Wärme dank Fußbodenheizung in der gesamten Wohnung. Eine PV-Anlage kann die Stromversorgung ergänzen.

Barrierefreier Komfort:
Ein Personenaufzug und der barrierefreie Zugang zu den Wohnungen im EG gewährleisten Bequemlichkeit für alle Generationen.

Licht & Design:
Freuen Sie sich auf helle, lichtdurchflutete Räume durch bodentiefe Fenster, ausgestattet mit praktischen elektrischen Außenrollläden.

Hochwertige Details:
Die Wohnungen verfügen über eine umfangreiche Elektroinstallation, eine hochwertige Sanitärausstattung und einen praktischen Waschmaschinenanschluss im Hauswirtschaftsraum.

Private Freiräume:
Entspannen Sie auf großzügigen Balkonen oder Dachterrassen. Erdgeschosswohnungen bieten zusätzlich eine eigene Terrasse mit privatem Gartenanteil.

Eigenleistung/Mehrleistung:
Bodenbeläge, sowie die Maler- und Tapezierarbeiten können Sie in Eigenleistung oder gegen Mehrpreis beauftragen - sprechen Sie uns einfach an!

Objektbeschreibung

In Kooperation mit der Gollmer-Bau Konzepthaus GmbH und dem Bauunternehmen Schmidt GmbH & Co. KG präsentieren wir Ihnen:

Dieses hochwertige Neubauprojekt, welches 16 Eigentumswohnungen (mit ca. 70 m2 bis 130 m²) mit 2 bis 4 Zimmern umfasst. Die zeitlose Architektur verbindet modernen Komfort mit ökologischer Verantwortung: Die Haustechnik nutzt fossilfreie Energie über eine Wärmepumpe und entspricht neuesten Standards. Jede Wohnung bietet eine durchdachte Raumaufteilung, lichtdurchflutete Räume, Fußbodenheizung und viele bodentiefe Fenster. Komfortmerkmale wie hochwertige Tageslichtbäder und großzügige Balkone oder Terrassen erhöhen die Lebensqualität, teils sogar mit eigenem Garten. Alle Etagen sind bequem per Aufzug erreichbar. Ideal als wertbeständige Kapitalanlage oder zum sofortigen Eigennutz.

Im 1. Obergeschoss haben wir folgende Wohnungen zum Kauf im Angebot:

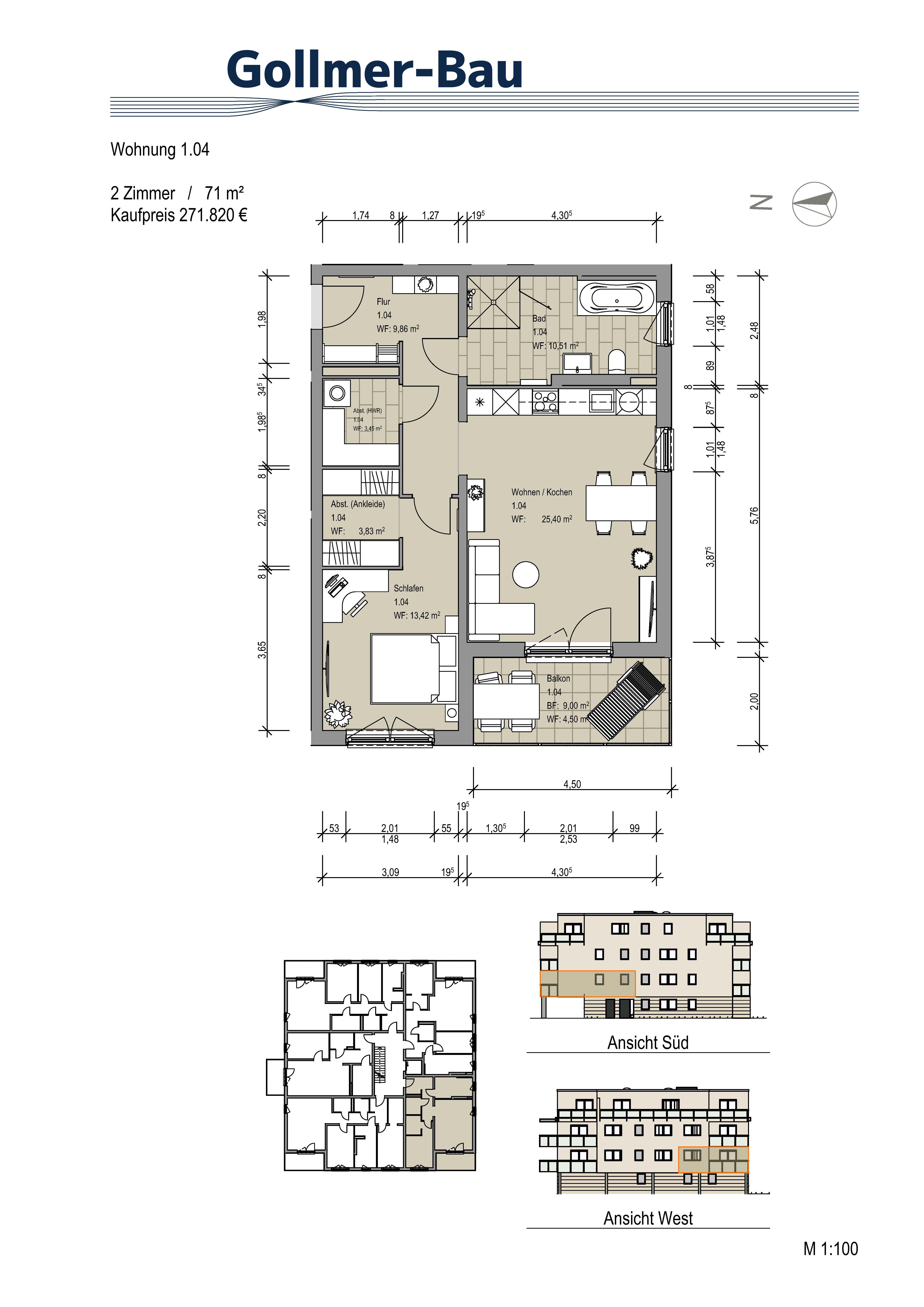
ETW 1.04 1.OG | 71,0m² | 2 Zimmer | 271.820 € mit Balkon
ETW 1.05* 1.OG | 95,4m² | 3 Zimmer | 360.580 € mit Balkon
ETW 1.06 1.OG | 70,3m² | 2 Zimmer | 259.900 € mit Balkon (reserviert)
ETW 1.07* 1.OG | 91,2m² | 3 Zimmer | 342.910 € mit Balkon
ETW 1.08 1.OG | 83,5m² | 3 Zimmer | 319.700 € mit Balkon

*mit Gäste-WC

Lieber Garten und Terrasse - diese Art von Wohnungen stehen im Erdgeschoss zur Verfügung.
Weitere Wohnungen mit Balkon stehen ebenfalls im 2.Obergeschoss zum Verkauf bereit.
Im obersten Stockwerk befinden sich die Penthousewohnungen mit Dachterrasse.

Für weitere Informationen nutzen Sie bitte das Kontaktformular und wir senden Ihnen automatisch, kostenfrei und sofort alle weiteren Informationen zu - willkommen in Sickte!

Lage

Sickte bietet die ideale Kombination aus zentraler Lage und naturnahem Wohnen. Verkehrsgünstig im attraktiven Städtedreieck zwischen Braunschweig, Wolfsburg und Wolfenbüttel gelegen, sind alle drei Städte dank der hervorragenden Anbindung – einschließlich der A39 – schnell erreichbar.

Die Gemeinde überzeugt mit einer sehr guten Infrastruktur, die alles für den Alltag bereithält: von Kindergärten sowie Grund- und Oberschule über vielfältige Einkaufsmöglichkeiten bis hin zu Ärzten und Banken. Ergänzt wird das Angebot durch ein örtliches Freibad und eine landschaftlich reizvolle Umgebung, die zahlreiche Möglichkeiten zur Freizeitgestaltung und Erholung bietet.

Ihr modernes und energieeffizientes Zuhause entsteht direkt am Übergang zur freien Landschaft. Nur wenige Schritte trennen Sie von Wiesen und Feldern, die zu Joggingrunden, Radtouren und entspannten Spaziergängen einladen. Diese ausgezeichneten Rahmenbedingungen machen Sickte zu einem attraktiven Rückzugsort für Sie und Ihre Familie.

##########################
INFORMATIONS-TAG & GRUNDSTÜCKSBESICHTIGUNG für Neubau-Eigentumswohnungen | WF-Sickte "Kaiserkamp 19"

Wann: Sonntag, 22.03.2026 von 14-16.00 Uhr
Adresse: Kaiserkap 19 in 38173 Sickte

Wir freuen uns auf Ihren Besuch!
##########################

Sonstige Angaben

Karte

Ihr Ansprechpartner

Dirk Dörjer
Bauunternehmen Schmidt GmbH & Co. KG
Telefon: +49 179 4841037
E-Mail: dirk.doerjer@bu-schmidt.de

Jetzt Kontakt aufnehmen

 Ich erkläre hiermit meine ausdrückliche Einwilligung für Telefonanrufe, Faxe, Post und E-Mails zwecks Beratungen, Informationen und News zu Immobilien, sowie Veranstaltungen der BU-Schmidt GmbH & Co.KG. Ich stimme zu, dass die von mir getätigten Angaben, sowie die von mir angegebenen Kontaktdaten, zwecks der Leistungserbringung und für den Fall von Rückfragen gespeichert werden. Des Weiteren nehme ich zur Kenntnis und stimme zu, dass die von mir getätigten Angaben zur Erfüllung der Leistungserbringung an Dritte weitergegeben und gespeichert werden. Sollte ich hiermit nicht mehr einverstanden sein, so werde ich Ihnen dies schriftlich mitteilen und die Aktualisierung oder Löschung meiner Daten beantragen.

 Ich habe die Datenschutzerklärung gelesen, verstanden und akzeptiere diese.


Top